Meltem
Recuperatore di calore HELTY HRV Flow ULTRA Plus
Impossibile caricare la disponibilità di ritiro
Dalīties




APRAKSTS
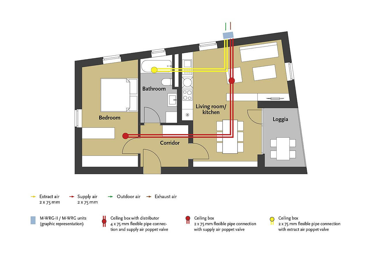
Decentralizētā rekuperācijas iekārta - Meltem M-WRG-II P
Meltem M-WRG-II P rekuperatorācijas sistēmai ir līdz pat 94% siltuma atgūšanas efektivitāte, augsta un konstanta gaisa plūsma 10-60 m³/h, kas padara to par ideālu risinājumu vienai vai vairākām telpām. Tā entalpijas siltummainis un F7 filtru klase nodrošina veselīgu dzīves vidi, vienlaikus piedāvājot arī izcilu aizsardzību pret troksni ar LpA 10 m² platībā un skaņas izolāciju līdz 70 dB.
Ideāli piemērots daudzstāvu ēkām
Izmantojot Meltem komforta ventilāciju, ir iespējams vienlaicīgi vēdināt vienu, divas vai vairākas telpas. Tas ne tikai samazina enerģijas izmaksas, bet arī investīciju izdevumus.
Ar šo rekuperācijas sistēmu varat vēdināt bez trokšņiem un alerģijām.
Turklāt ventilācijas iekārtu var uzstādīt gandrīz nemanāmu, un, pateicoties dažādiem dizaina variantiem, tās piedāvā personalizētas stila iespējas.
Piemērots:
- Dzīvojamās ēkas
- Viesnīcas
- Pansionāti / studentu kopmītnes
- Dienas centri / skolas
- Komunālās telpas
- Biroju ēkas
- Medicīnas iestādes
- Modulārā konstrukcijas
Elastīga uzstādīšana
Meltem M-WRG-II piedāvā dažādas uzstādīšanas iespējas:
- virsmas montāža modernizācijai vai atjaunošanai;
- iebūvējams;
- gandrīz neredzama, sienā integrēta (U²) versija jaunbūvēm vai renovācijai.
Iespējami cauruļvadu savienojumi visiem uzstādīšanas veidiem.
Ierīces pārvaldība
Ērtas ventilācijas darbības iespējas nodrošina, ka tiek apmierinātas visas vēlmes. Neatkarīgi no tā, vai tā ir vadība pie iekārtas, izmantojot decentralizētus vadības elementus, BUS sistēmas, vadība pēc pieprasījuma, izmantojot ārējus radio sensorus, vai bezvadu vadība, jūs varat izvēlēties atbilstoši savām prasībām.
Noklusējuma opcija ir "Uz ierīces", taču "savienojamība ar kabeli", "bezvadu darbība (Mobilā lietotne)" un "BUS sistēmas" ir PĒC PIEPRASĪJUMA.
TEHNISKĀ SPECIFIKĀCIJA
- Scegliendo una selezione si ottiene un aggiornamento completo della pagina.